Hausboot | Deutschland, Schleswig Fjord Schleiliebe

  • Adresse
  • Am Hafen 5 24837 Schleswig
Biosauna
Biosauna
Nichtraucher
Nichtraucher
WLAN im Hausboot
  • Personen
  • 4
  • Schlafzimmer
  • 2
  • Badezimmer
  • 1

Beschreibung

Urlaub auf Fjord Schleiliebe bedeutet Entspannung und Erholung, Freiheit oder Abenteuer für Urlaub mit Freunden, Familien oder Paare.

Dieses großzügige festliegende Hausboot bietet Ihnen auf ca. 63 qm Bootsfläche den ganzen Komfort einer modernen und hochwertigen Ferienwohnung mit Sonnen- und Dachterrasse. Das besondere Highlight von Fjord Schleiliebe ist die Biosauna am Heck des Bootes. Im gemütlichen Wohnraum mit Wohnküche lässt es sich entspannt auf der Couch verweilen oder Sie kommen am großzügigen Tisch zu einem leckeren Essen oder Spieleabend zusammen.

Die vollausgestattete Küche mit allen wichtigen Küchengeräten und einem Induktionsherd lässt keine Wünsche offen. Die Spülmaschine unterstützt Sie dabei, schnell wieder die wesentlichen Dinge des Urlaubes fokussieren zu können. An warmen Tagen laden sowohl die zwei Sonnenterrassen vor und hinter dem Wohnaufbau als auch die Dachterrasse zum Entspannen und Sonnenbaden ein. Auf dieser haben Sie einen atemberaubenden Blick über die Schlei auf das Naturschutzgebiet Möweninsel und können wunderbare Sonnenuntergänge genießen.

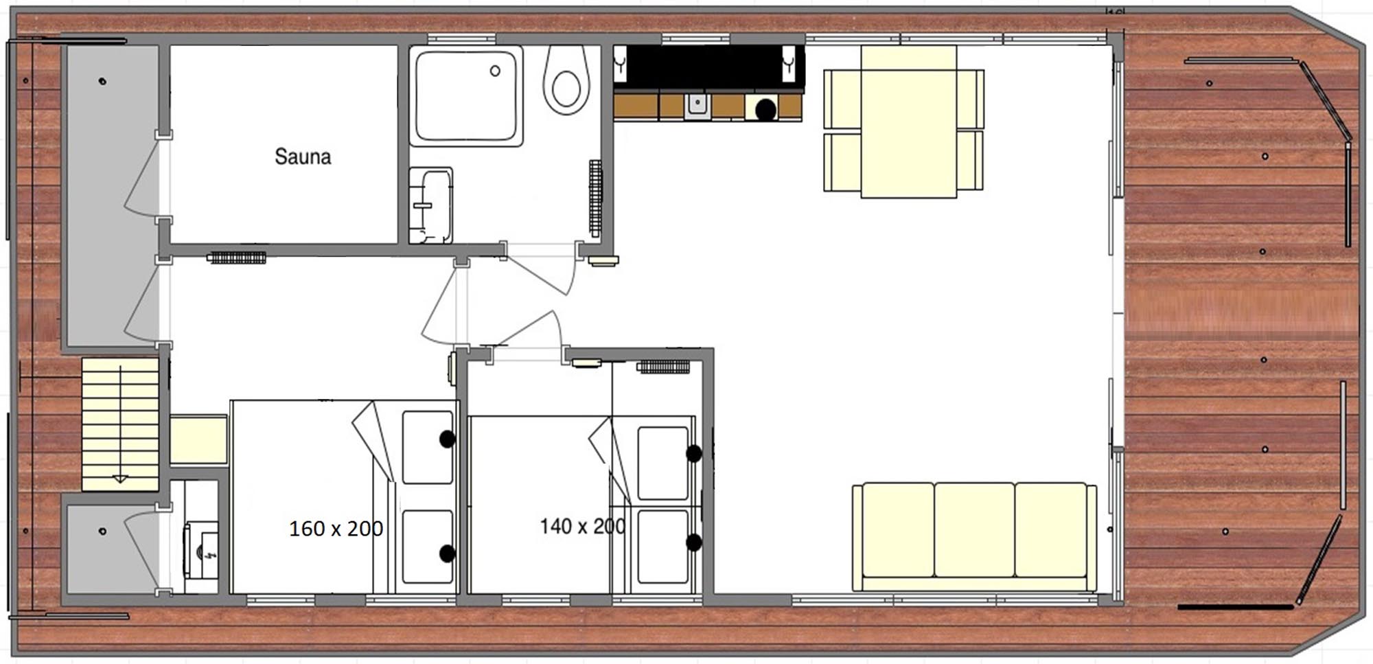
Im Inneren des Hausbootes finden Sie neben dem Wohnraum mit Fußbodenheizung für kalte Tage und optional ausziehbarer Couch zwei Schlafräume mit je einem Doppelbett sowie ein modernes Duschbad. Genügend Stauraum finden Sie in den Schränken sowie in den Schubladen unter den Betten.

 

Bitte beachten Sie, dass die Benutzung von Bettwäsche zwingend erforderlich ist. Diese können Sie entweder selbst mitbringen oder im Verlauf des Buchungsprozesses bei uns hinzubuchen.

Grundrissbilder

Ausstattungsmerkmale

Allgemein
  • Feuerlöscher
  • Parkplatz
  • Schwimmsteg
  • Staubsauger
  • Trockner im Hafen
  • Verbandskasten
  • Warmes Wasser
  • Waschmaschine im Hafen
  • WLAN im Hausboot
  • Zentralheizung
Badezimmer
  • Dusche
  • Fenster
  • Handtücher (zubuchbar)
  • Spiegel
  • Waschbecken
  • WC
Geeignet für
  • Langzeiturlaub
  • Nichtraucher
  • Urlaub als Paar
  • Urlaub mit der Familie
  • Urlaub mit Freunden
Küche
  • Gefrierfach
  • Geschirr
  • Geschirrspüler
  • Geschirrtücher (zubuchbar)
  • Induktionsherd
  • Kaffeemaschine
  • Küchenzeile
  • Kühlschrank
  • Mikrowelle
  • Toaster
  • Wasserkocher
Sauna
  • Biosauna
Schlafzimmer 1
  • 2 Bettdecken (135x200)
  • 2 Kissen (80x80)
  • Bettwäsche (zubuchbar)
  • Matratzenschoner
  • Stauraum unter dem Bett
Schlafzimmer 2
  • 2 Bettdecken (135x200)
  • 2 Kissen (80x80)
  • Bettwäsche (zubuchbar)
  • Doppelbett (160x200)
  • Matratzenschoner
  • Regal
  • Schrank
  • Stauraum unter dem Bett
Terrasse
  • 2 Terrassen (vorne und hinten)
  • Badeleiter
  • Hängematte
  • Holzterrasse auf dem Dach
  • Lounge mit Sonnenverdeck
  • Terrassenmöbel
Wohnzimmer
  • Bücher
  • Esstisch 4 Stühle
  • Gesellschaftsspiele
  • Küchenzeile
  • Sofa
  • TV
Route berechnen
In der Umgebung
Entfernung zum Strand
800 m
Entfernung zum Zentrum
350 m

Mietpreise

Zeitraum
Mindestübernachtungen
Preis pro Nacht
Endreinigung
Hauptsaison 01.05.2023 - 30.09.2023
2
174,00 €
100,00 €
Nebensaison 01.10.2023 - 21.12.2023
2
154,00 €
100,00 €
Weihnachten / Silvester 22.12.2023 - 07.01.2024
3
174,00 €
100,00 €
Nebensaison 08.01.2024 - 30.04.2024
2
159,00 €
100,00 €
Hauptsaison 01.05.2024 - 30.09.2024
2
179,00 €
100,00 €
Zzgl. einer erstattbaren Kaution von einmalig 100,00 €.

Bei Buchungen bis zu 3 Nächten fällt eine einmalige Kurzbucherpauschale in Höhe von 30,00€ an.

Angebote

6 für 5! 6 Nächte buchen, 5 Nächte bezahlen

6 für 5! 6 Nächte buchen, 5 Nächte bezahlen

01.11.2023 - 21.12.2023
  • Mindestübernachtungen
    6
  • Bezahlen für Tage
    5
Details

Buchen Sie einen Aufenthalt von 6 Nächten, erhalten Sie eine Nacht geschenkt!

 

7 für 6! 7 Nächte buchen, 6 Nächte bezahlen

7 für 6! 7 Nächte buchen, 6 Nächte bezahlen

01.11.2023 - 21.12.2023
  • Mindestübernachtungen
    7
  • Bezahlen für Tage
    6
Details

Buchen Sie einen Aufenthalt von 7 Nächten, erhalten Sie eine Nacht geschenkt!

 

Obligatorische Leistungen

Energiepauschale
3,00 € Pro Tag

Optionale Leistungen

Baby- und Kinderreisebett
14,00 € Einmalig

Baby- und Kinderreisebett zusammengeklappt, inkl. Matratze, ohne Laken.

Maße 120cm x 60cm; max. Belastung 15 kg.

Begrenzte Verfügbarkeit.

Kinderhochstuhl
15,00 € Einmalig

Kinderhochstuhl mit Sitzgurt. Max. Belastung 15 kg.

Begrenze Verfügbarkeit.

Saunapaket
17,00 € Pro Person

Bestehend aus einem Bademantel, einem Saunatuch, einem Paar Slipper sowie einem Sauna-Aufguss

Wäschepaket
19,00 € Pro Person

(Spannbettlaken, Bettbezug, Kopfkissenbezug, Handtuch groß und klein, Duschvorleger und Geschirrtücher)

3 Bewertungen für Fjord Schleiliebe

Durchschnittliche Bewertung

5,0 / 5
Bei 3 Bewertungen
Ausstattung
5,0
Preis / Leistung
5,0
Service
5,0
Lage
5,0
5,0/5
Imke und Onno 30.04.2023 Fjord Schleiliebe

Schleiliebe unsere neue Liebe

Wir schließen uns gerne der vorherigen Rezension von Dietmar in allen Punkten an. Auch bei uns war es sehr frisch und stürmisch, da war die Sauna ein echter Hochgenuss. Sehenswürdigkeiten zu Fuß ( z.B..Fischerholm) oder mit dem Fahrrad (z.B.Haithabu) wunderbar zu erreichen. Am liebsten wären wir länger geblieben:)

Geschrieben vom Administrator

Vielen Dank für Ihr schönes Feedback. Wir freuen uns dass sie den stürmischen Aufenthalt in der Sauna genießen konnten. Bis zum nächsten Mal, dann länger, an Bord

5,0/5
Dietmar 06.04.2023 Fjord Schleiliebe

Ein Traum:)

Das Hausboot Schleiliebe war für uns in allen Bereichen eine wahre Freude! ALLES da, superschick eingerichtet, selbst Bücher und Brettspiele waren vorhanden. Die Aussicht rundum auf den See ist einfach wunderschön. Selbst wenn es regnet und stürmt, kann man das Naturschauspiel im Warmen gemütlich beobachten. Wer Wasservögel auf Fischjagd beobachten möchte, kommt hier auch voll auf seine Kosten. Am Hafen gibt es mehrere, leckere Einkehrmöglichkeiten und der Dom ist der Hammer. Wir geben für das Hausboot sehr gerne 5 Sterne!!!:)

Geschrieben vom Administrator

Vielen Dank für die tolle Rückmeldung. Wir freuen uns dass sie trotz Sturm und Regen das Naturschauspiel genießen konnten. Bis zum nächsten Mal!

Weitere Bewertungen laden

Bewertung schreiben

Ausstattung
5,0
Preis / Leistung
5,0
Service
5,0
Lage
5,0
5,0/5
Datenschutz*
* Pflichtfeld
Preis auf Anfrage
1 Erwachsener 0 Kinder
Erwachsene
-
+
Kinder
-
+

Bitte geben Sie die Alter der weiteren Personen an

  • Das Anreisedatum muss gesetzt sein.
  • Das Abreisedatum muss gesetzt sein.
  • Das Anreisedatum darf nicht das Abreisedatum sein.
  • Dieser Zeitraum darf nicht gebucht werden.
  • Diesen Zeitraum können Sie nicht buchen, da mindestens ein Tag außerhalb einer Saison liegt.

Service & Kontakt

Für Fragen, Anregungen oder bei Problemen stehen wir Ihnen gerne zur Verfügung

Tel.: +49 (0) 431 - 806 595 40
Mail: buchung@fjordlink.de

Preis auf Anfrage

Kalender

April 2026
Mo Di Mi Do Fr Sa So
1 2 3 4 5
6 7 8 9 10 11 12
13 14 15 16 17 18 19
20 21 22 23 24 25 26
27 28 29 30
Mai 2026
Mo Di Mi Do Fr Sa So
1 2 3
4 5 6 7 8 9 10
11 12 13 14 15 16 17
18 19 20 21 22 23 24
25 26 27 28 29 30 31
Juni 2026
Mo Di Mi Do Fr Sa So
1 2 3 4 5 6 7
8 9 10 11 12 13 14
15 16 17 18 19 20 21
22 23 24 25 26 27 28
29 30
Juli 2026
Mo Di Mi Do Fr Sa So
1 2 3 4 5
6 7 8 9 10 11 12
13 14 15 16 17 18 19
20 21 22 23 24 25 26
27 28 29 30 31
  • Das Anreisedatum muss gesetzt sein.
  • Das Abreisedatum muss gesetzt sein.
  • Das Anreisedatum darf nicht das Abreisedatum sein.
  • Dieser Zeitraum darf nicht gebucht werden.
  • Diesen Zeitraum können Sie nicht buchen, da mindestens ein Tag außerhalb einer Saison liegt.
  • Frei
  • Angebot
  • Markierung
  • Buchung
  • Reservierung
Datum der letzten Aktualisierung des Belegungskalenders: 22.04.2026